- Bedrooms
- Baths
- Sq. Ft.
- Year Built
- Acres
Design Is In The Details.
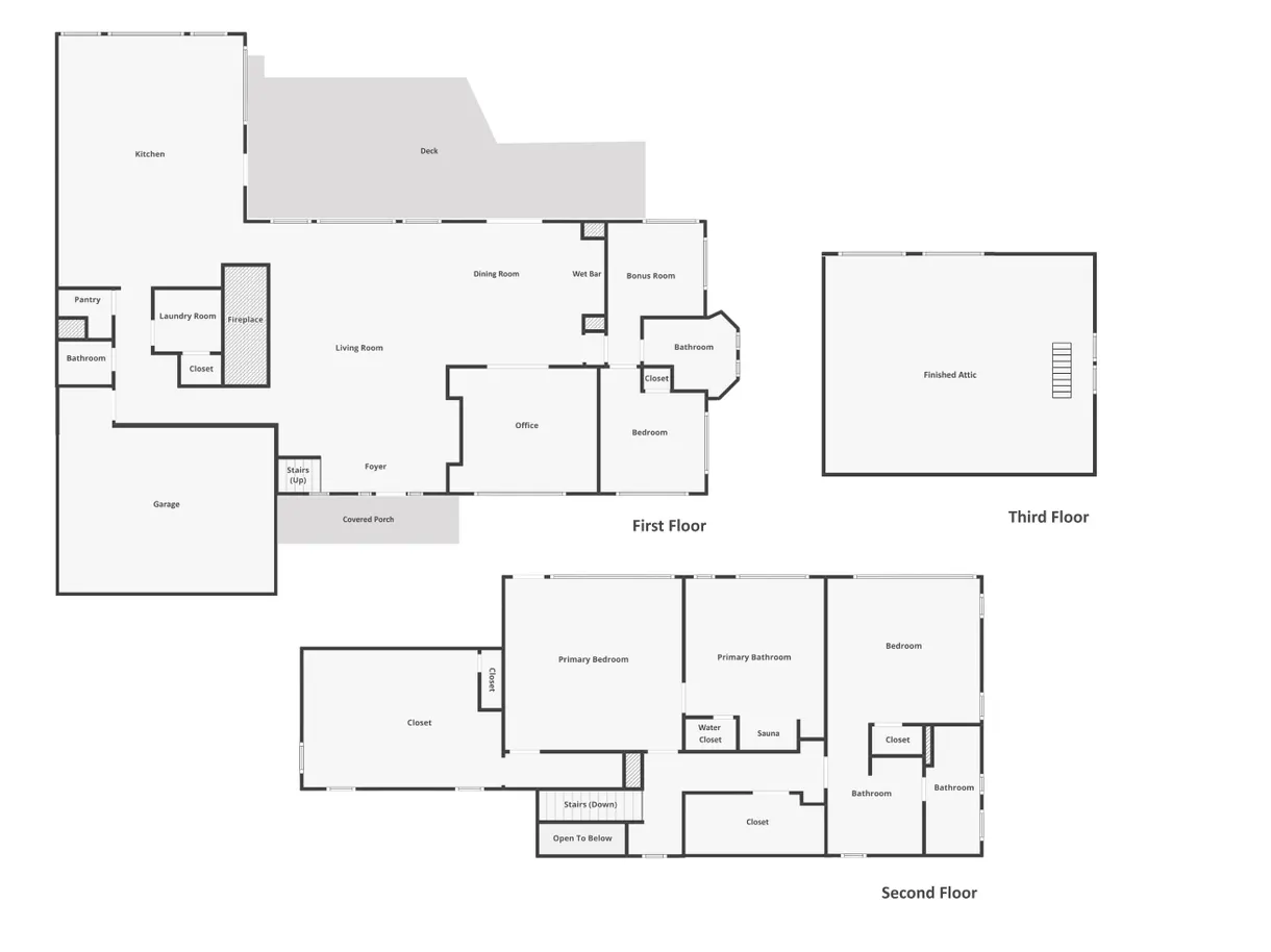
Rare Bainbridge Island waterfront offering with protected, panoramic water views from a fully bulkheaded high-bank setting, capturing stunning sunrises over Downtown Seattle, the Cascades, Mt. Rainier, and the ever-changing maritime activity along the shipping lanes. A private tree-lined drive opens to a near-circular driveway, creating a quiet, stately sense of arrival, set within a rare, fully level 1-acre parcel. Designed in a timeless Pacific Northwest Coastal Craftsman style, the home has been extensively reimagined with over $1M invested, encompassing magazine-worthy design alongside meaningful infrastructure and system upgrades, elevating the home to a level of finish and execution rarely achieved. The interior unfolds with a natural, connected flow, well suited for both everyday living and entertaining, with views from nearly every room. The expansive kitchen is nothing short of stunning. Massive vaulted ceilings, inset cabinetry, a generous island, a sunlit breakfast nook, and two walls of windows that capture breathtaking eastern and southern views. A newly installed, imported AGA range anchors the space, a distinctive choice for those who appreciate a more traditional and intentional approach to cooking. The home offers three bedrooms, each with its own ensuite, along with a dedicated office with a Murphy bed. The primary suite is a true retreat, with sweeping views, a private deck, dramatic vaulted ceilings, and a beautifully updated ensuite bath with a sauna, complemented by a walk-in closet of exceptional scale, large enough to double as a workout space. A covered mahogany view deck extends from the kitchen, dining room, and living room, complete with integrated heaters for year-round enjoyment, and opens to an expansive, flat lawn set against commanding views. Ideally located near Fay Bainbridge Park and the shops and conveniences of Rolling Bay. Seldom does a waterfront home combine a fully level acre, panoramic views, and this level of design and everyday livability.
Extraordinary properties are different at every level.
Open House Info
Property Details
- MLS ID: 2497118
- Bathrooms: 4 (2 full, 1 half, 1 three-quarter)
- Community: Sunrise
- County: Kitsap County
- Elementary School: xalilc Elementary
- Flooring: Ceramic Tile, Hardwood, Carpet
- High School: Bainbridge Isl
- Interior Square Footage: 3,761
- Junior High School: Buyer To Verify
- Lot Size Sq. Ft.: 46,174
- Lot Style: Adjacent to Public Land, Paved
- Property Subtype: Single Family Residence
- Year Built: 1952
- Web ID: ZTSN2B
Amenities
- Site Features: Cable TV, Deck, High Speed Internet, Patio, Propane, Sprinkler System
Additional Highlights
- Appliances That Stay: Dishwasher, Dryer, Microwave, Refrigerator, Stove(s)/Range(s), Tankless Water Heater, Washer
- Bus Line Nearby?: Yes
- Exterior: Wood
- Fireplace Features: Gas, Wood Burning
- Land/Topography: Level, Steep Slope
- Roofing: Composition
- View: City, Mountains, Sound
- Water Source: Public
Taxes and Fees
- Taxes (Est): $17,605
- Taxes (Year): 2026
Floor Plans


Location
12960 Sunrise Drive NE, Bainbridge Island, WA 98110Get Driving DirectionsContact Us

